Zur Startseite

compactMaster CMW and CMW-F prismatic sliding door

Entrance doors adapted to the building architecture

 
 

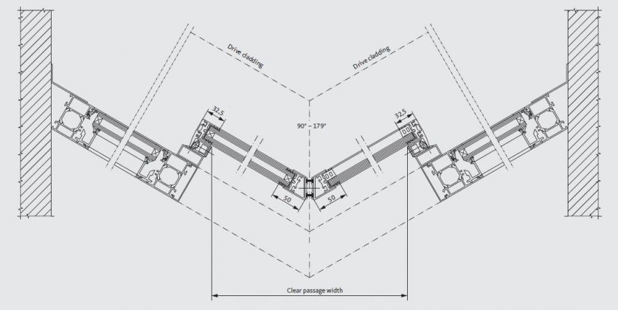
An exceptional sliding door to give the entrance area an individual touch. This means that every available angle between 90° and 179° can be realised. The corresponding safety sensors safeguard the main closing edge in accordance with DIN 18650/EN 16005. The "true" drive height is 100 mm, meaning the door leaf's upperprofile in the slim profile system is integrated into the drive and concealed by the cover. The prismatic sliding door can thus be easily and attractively integrated into all delicate substructures.

Convincing in detail:

 
  • Typ CMW-F: Redundant drive with 2 motors for use in escape and rescue routes
  • Running smoothness thanks to rollers with an exchangeable rubber-coated running face
  • "True" height of drive: 100 mm
  • Fast opening speed of up to max. 0.9 m/s
  • G30 profile system
  • Clear and simple operation
  • Optionally available with locking element integrated into the carriage or floor lock (optional)
  • Self-learning control system with many connection and adjustment options
GB_CMW

Tech­nical details

Application 2-leaf

Clear passage width [1] [2]

900 - 2000mm

Clear passage height [1]

max. 2750mm

Height of drive

100mm

Door leaf weight

max. 100kg / leaf

Supply voltage

230V AC, 50Hz

Power consumption

max. 160 VA (50 VA during operation)

Hold-open time

0-99 s

Hold-open time with key impulse

0-99 s

Opening speed

max. 0,9 m/s

Winter opening width [2]

50% - 100% of the clear passage width

Protection type / ambient temperature

IP 20 (for dry rooms only) / -15 °C up to +50 °C

Footnotes

[1] Standard dimensions, taking into account the overall measurement, the ratio of height and width and the local installation conditions; special solutions on request.
[2] The mandatory escape route width must be observed.

Downloads

 
 
Vorsprung mit System

Address

GU Automatic GmbH
Karl-Schiller-Straße 12
33397 Rietberg
Germany

Contact

  • +49 (0) 5244 90 75 -100
  • +49 (0) 5244 90 75 -589
  • nfg-tmtcd

 

Data Protection Notice

We use cookies in order to make your visit to our website more pleasant and to enable the use of certain functions. Along with cookies required for technical reasons, we use cookies from third-parties (Google Fonts,Google Maps, YouTube) on various pages as well as tracking tools (Google Analytics, website Analytics-Matomo) for analytical purposes. If you do not accept the use of cookies, we cannot guarantee full use of the website. Additional information on our use of cookies and how you can manage your cookie settings can be found in our data protection information.